ENERGETO 8000

ANA SAYFA / ÜRÜNLERİMİZ / ENERGETO 8000

s
AVANTAJLARINIZ

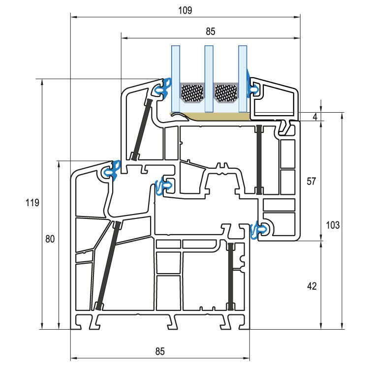
85 mm profil derinliği
Uf = 0.94 W/m²K ; standart üçlü cam uygulamasıyla  0.79 W/m²K Kadar Uw değerlerine ulaşabilir.
Pencere, bir yandan pencere kanadının cam levha ile yapıştırılması, diğer yandan pencere kasasının bu iş için özel olarak geliştirilen PBT ile güçlendirilmesi sayesinde bu uc değerlere ulaşmaktadır.
Ses yalıtım sınıfı IV e Kadar mükemmel ses yalıtımı
51mm e Kadar cam kalınlığı
                                                                                    Test edilmiş hırsızlık emniyeti sınıfı RC2
 
Pencereleriniz dış cephenizin en zayıf noktasıdır. Pencere yapıları tüm evinizin %8 lik bölümünü kaplasada ısı kaybının %40 ını oluşturur.